Котел КВр-0,35КБ уголь в Вологде

Водогрейный, отопительный, твердотопливный, колосники, 0.35 МВт (350 кВт), 70...95 °C, 0,6 МПа (кгс/cм²).

Цена:
276 000 руб.
Количество:
Отправляя свои личные данные через формы на сайте, Вы даёте своё согласие на обработку персональных данных согласно Федеральному закону №152-ФЗ «О персональных данных» от 27.07.2006 г. в редакции от 01.07.2017.

Описание котла

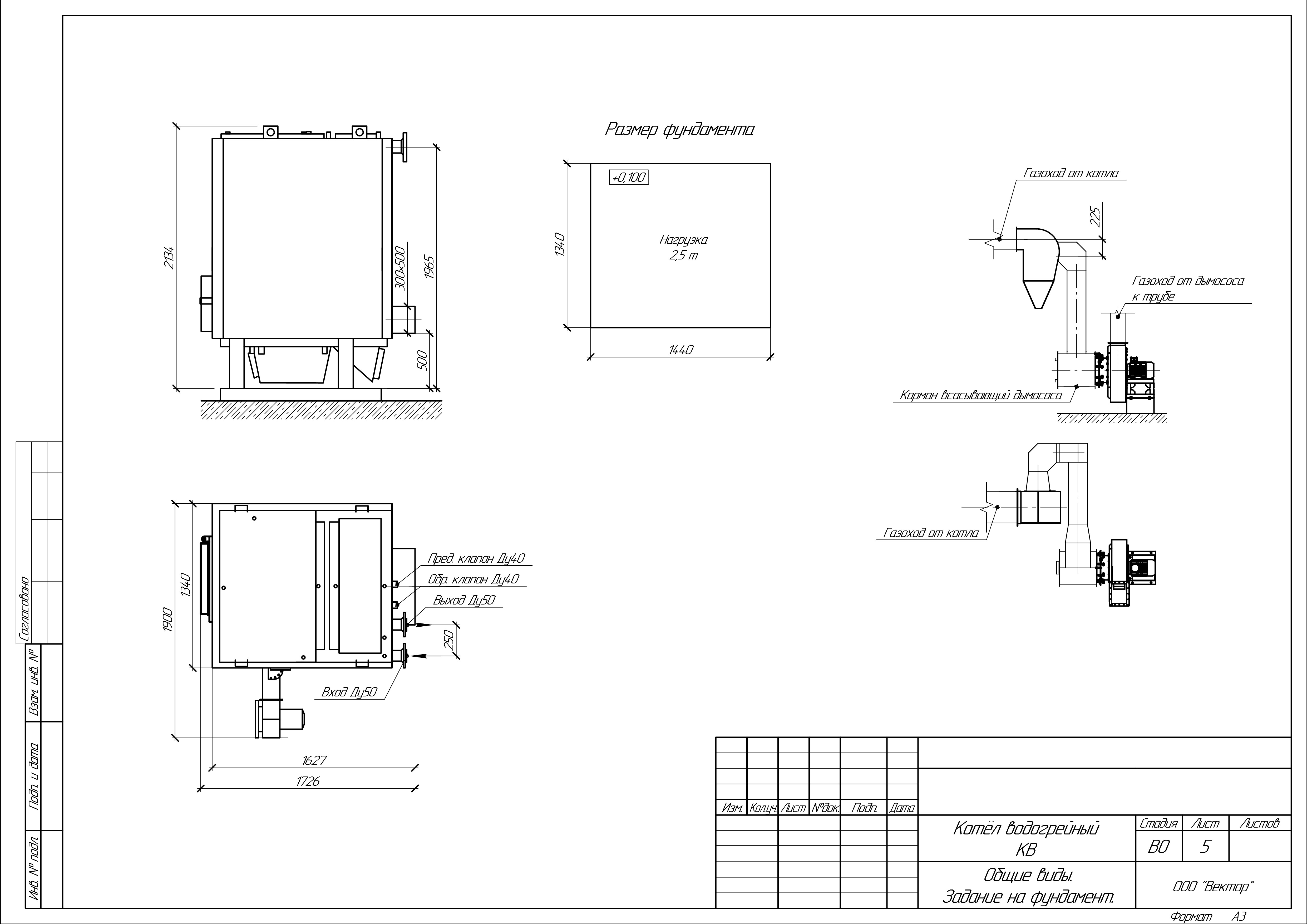
Водогрейный котел КВр-0,35 – это агрегат с ручной системой топливоподачи и шлакоудаления, работающий на твердом топливе – каменном и буром угле. Состоит из блока котла – сварной трубной системы – и колосниковой топки (колосники). Используется для отопления и горячего водоснабжения жилых, административных и производственных зданий. Максимальная температура нагрева жидкости в котлах на угле достигает 115 °С. Устанавливается в котельную 0,35 МВт и котельную 0,7 МВт.

Мощная – 350 кВт (0,35 МВт) – «начинка» котла КВр заключена в окрашенный металлический корпус. Покрытие (краска) защищает от коррозии и механических повреждений. Газоплотные и негазоплотные части котельного блока, чтобы сократить теплопотери, обшиты теплоизоляционным материалом: плитами ПТЭ и войлоком.

Для установки твердотопливного котла требуется совсем мало места – габаритные размеры по длине, ширине и высоте: 2,0х1,35х2,1 м. При этом отапливаемая площадь достаточно большая – 3500 м². Агрегат компактен, безопасен и прост в эксплуатации. Котел КВр-0,35 легко обслуживается одним оператором – кочегаром: расход угля небольшой – 75 кг/ч. Удобно расположенная дверка топочной камеры колосникового котла облегчает загрузку топлива.

При должном соблюдении правил использования, а это своевременная очистка топки от шлака, можно забыть о поломках и снижении производительности отопительного котла КВр, что дает срок службы не менее 10 лет.

Более подробную информацию Вы можете получить у наших специалистов. Чтобы купить отопительный водогрейный угольный котел КВр-0,35 с колосниками мощностью 350 кВт (0,35 МВт), достаточно позвонить нам либо оставить заявку и мы обязательно с Вами свяжемся.

Характеристики
Тип: КВр
Вид топлива: Твердотопливный
Топливо: Уголь
Мощность: 0.3 Гкал
Мощность: 350 кВт
Мощность: 0.35 МВт
КПД, не менее: 80 %
Вид топки: Ручной
Топка: Колосники
Класс котла: 1
Отапливаемая площадь: 3500 м²
Отапливаемый объём: 9450 м³
Тяга: Принудительная
Температура воды на выходе, не менее: 70...95 °С
Аэродинамическое сопротивление: 210 Па (мм. вод. ст.)
Расход теплоносителя среды: 12 м³/ч
Расход условного топлива: 54 кг/ч
Расход топлива: 75 кг/ч
Массовый расход уходящих газов: 0.21 кг/с
Низшая теплота сгорания топлива: 5000 кКал/кг
Давление рабочей среды: 0,6 МПа (кгс/cм²)
Гидравлическое сопротивление при перепаде t: 0,08 МПа (кгс/cм²)
Температура воды на входе в котёл, не менее: 60 °C
Температура уходящих газов: 170…250 °C
Радиационная поверхность нагрева: 9.1 м²
Конвективная поверхность нагрева: 16.4 м²
Номинальное разрежение в топке при работе: 20…60 Па
Габаритные размеры (ДxШxВ): 2000х1350х2100 м
Масса котла (без воды): 1840 кг
Расчетный срок службы, не менее: 10 лет
Тип котла: Водогрейный
Серия: КВр

Города поставок

Москва
Пн-Пт 09:00 - 18:00
Сб 09:00 - 17:00
Карачаево-Черкесская Республика
Пн-Пт 09:00 - 18:00
Сб 09:00 - 17:00
Екатеринбург
Пн-Пт 09:00 - 18:00
Сб 09:00 - 17:00

Совершите покупку за 4 шага

Шаг 1
Выберите товары из каталога
Шаг 2
Поместите нужные вам товары в корзины
Шаг 3
Укажите свои контактные данные в форме обратной связи
Шаг 5
Ожидайте звонка от менеджера для оформления покупки

Похожие товары

КВм
Котлы КВм
Цена от 0 руб.
Отопительные котлы
Водогрейный котел КВм-7.0 на ДВО используется для нагрева жидкости до 115 °С, применяемой в системах отопления и горячего водоснабжения. Отопительные приборы КВм-7.0 способны прогревать помещения площадью до 70000 м². Твердотопливный котел оснащается механической топкой на древесных отходах со шнековой подачей. Дополнительно к агрегату приобретаются сопутствующие товары: вентиляторы, дымососы, циклоны, дымовые трубы, бункер топки и другое котельное оборудование.
Отопительные котлы
Водогрейный котел КВм-6.3 на ДВО используется для нагрева жидкости до 115 °С, применяемой в системах отопления и горячего водоснабжения. Отопительные приборы КВм-6.3 способны прогревать помещения площадью до 63000 м². Твердотопливный котел оснащается механической топкой на древесных отходах со шнековой подачей. Дополнительно к агрегату приобретаются сопутствующие товары: вентиляторы, дымососы, циклоны, дымовые трубы, бункер топки и другое котельное оборудование.
Вы смотрели эти товары
Отопительные котлы
Водогрейный, отопительный, твердотопливный, колосники, 0.35 МВт (350 кВт), 70...95 °C, 0,6 МПа (кгс/cм²).
Отопительные котлы
Водогрейный, отопительный, твердотопливный, колосники, 0.1 МВт (100 кВт), 70...95 °C, 0,6 МПа (кгс/cм²).
Отопительные котлы
Водогрейный, отопительный, твердотопливный, колосники, 0.25 МВт (250 кВт), 70...95 °C, 0,6 МПа (кгс/cм²).